Flat For Sale
Available 1328+ Flats
Search Flats
Select Location
12 Rastar Mor
Alupotti
Ambagan
Banolota R/A
Bosua
Budhpara
Chandrima Residential Area
Chhoto Bangram
City Haat
Court
Dorikhorbona
Ghoramara
Hatemkha
Kadirganj
Kashiadanga
Kazihata
Koyerdara
Laxmipur
Meherchandi
Mollapara
Nowdapara
Padma Residential Area
Rajarhata
Rani Bazar
Sagorpara
Shaheb Bazar
Shalbagan
Shiroil
Shosthitola
Silinda
Sipaipara
Sopura
Sultanabad
Talaimari
Terokhadia
Upashahar
Baya
Bhugroil
Binodpur
Damkura
Katakhali
Kharkhari
Kornohar
Naohata
Select Developer
AL-Aksha Developers Pvt Ltd
Al-Barr Developers
ANB Unique Real Estate Ltd
Aristocrat Real Estate and Developers
Barendra Properties Ltd
Blue Orchid Real Estate
CDM Properties
City Real Estate
Dream Smith Properties
Ecotask Developer
Green Bangladesh Developer
Green Plaza Real Estate Company Ltd
Haven Properties
Hilltech Real Estate & Builders
HKS Trade & Developer
Joint Family Properties Ltd
Kabir Associates
London Real Estate Ltd.
M.A.U Properties
M/S Momotaz Enterprise
M/S Rahman Developer & Associates
MOON Properties
Mukta Homes Ltd.
NOORA Properties
One Developer
Padma Real Estate
Pattern Properties
Pattern Properties Ltd
Perfect living properties limited
Prince Hill
Raiyan Properties Limited
Rangapori Developers & Properties
Real Star Properties Limited
RR Properties
Sadaat Properties
Sarkar Builders
SK Realestate BD
Sukarna Developers
Sums Real Estate
Swapnorup Real Estate Developer
TAIBA Properties
Tricon Properties
Urban Hill PVT. LTD.
ZAZI Corporation
Select Bedroom
1
2
3
4
5
5+
Select Floor
Ground Floor
1st Floor
2nd Floor
3rd Floor
4th Floor
5th Floor
6th Floor
7th Floor
8th Floor
9th Floor
10th Floor
11th Floor
12th Floor
13th Floor
14th Floor
15th Floor
Minimum Sqf
400
600
800
1000
1200
1400
1600
1800
2000
2500
Maximum Sqf
600
800
1000
1200
1400
1600
1800
2000
2500
3000
3000+
Search
Mohanonda 4 Bed 6th Floor Unit A 2520 SFT
Z And Z Heights 3 Bed 2nd Floor Unit A 1725 SFT
Mohanonda 4 Bed 1st Floor Unit A 2520 SFT
3 Bed 9th Floor Block H 1390 SFT
Ashrafun Village 3 Bed 1st Floor Unit D 1530 SFT
Al-Aksha Vista 3 Bed 8th Floor Unit C 1950 SFT
Al-Aksha City 3 Bed 5th Floor Unit B 1815 SFT
Rivery 3 Bed 4th Floor Unit B 1630 SFT
Green Monowara Palace 3 Bed 2nd Floor Unit D 1350 SFT
Al-Aksha City 3 Bed 6th Floor Unit J 1450 SFT
3 Bed 11th Floor J11 1600SFT
Galaxy Line 3 Bed 10th Floor Unit A 1725 SFT
Jabbar Tower 3 Bed 6th Floor Unit C 1210 SFT
Ali Palace 3 Bed 2nd Floor Unit B 1585 SFT
Rainbow Palace 4 Bed 9th Floor Unit C 3108 SFT
Al-Aksha M.A Tower 3 Bed 5th Floor Unit E 1475 SFT
Rivery 3 Bed 2nd Floor Unit C 1550 SFT
Rivery 3 Bed 7th Floor Unit A 1650 SFT
Orchid Tower 3 Bed 6th Floor Unit B 1815 SFT
Jabbar Tower 3 Bed 4th Floor Unit C 1210 SFT
Supreme Tower 3 Bed 6th Floor Unit A 1665 SFT
Ashrafun Village 3 Bed 5th Floor Unit D 1530 SFT
Z And Z Heights 3 Bed 8th Floor Unit A 1725 SFT
3 Bed 5th Floor F5 1600SFT
3 Bed 11th Floor M11 1600SFT
Supreme Tower 3 Bed 6th Floor Unit D 1380 SFT
Al-Aksha M.A Tower 3 Bed 4th Floor Unit A 1660 SFT
Galaxy Line 3 Bed 1st Floor Unit C 1570 SFT
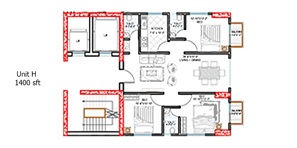
Al-Aksha City 3 Bed 10th Floor Unit H 1400 SFT
Al-Aksha Vista 3 Bed 4th Floor Unit B 1640 SFT
Bijoy Tower 3 Bed 7th Floor Unit B 1500 SFT
Green Monowara Palace 3 Bed 4th Floor Unit C 1300 SFT
Sagor bilash 3 Bed 2nd Floor Unit A 1582 SFT
3 Bed 5th Floor K5 1600SFT
3 Bed 6th Floor C6 1600SFT
Ali Palace 3 Bed 3rd Floor Unit B 1585 SFT
Al-Aksha City 3 Bed 3rd Floor Unit H 1400 SFT
3 Bed 3rd Floor Block H 1390 SFT
Al-Aksha City 4 Bed 7th Floor Unit E 2415 SFT
HS Tower 3 Bed 8th Floor Unit D 1300 SFT